ATHENS ▫ GREECE ▫ 2015
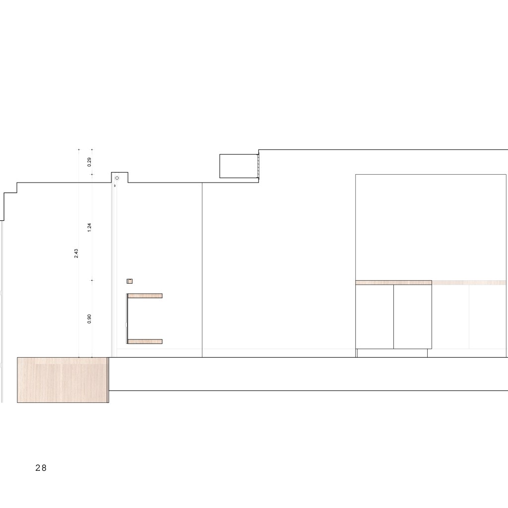
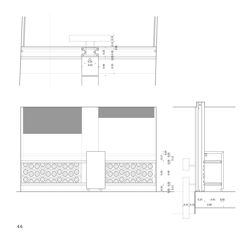
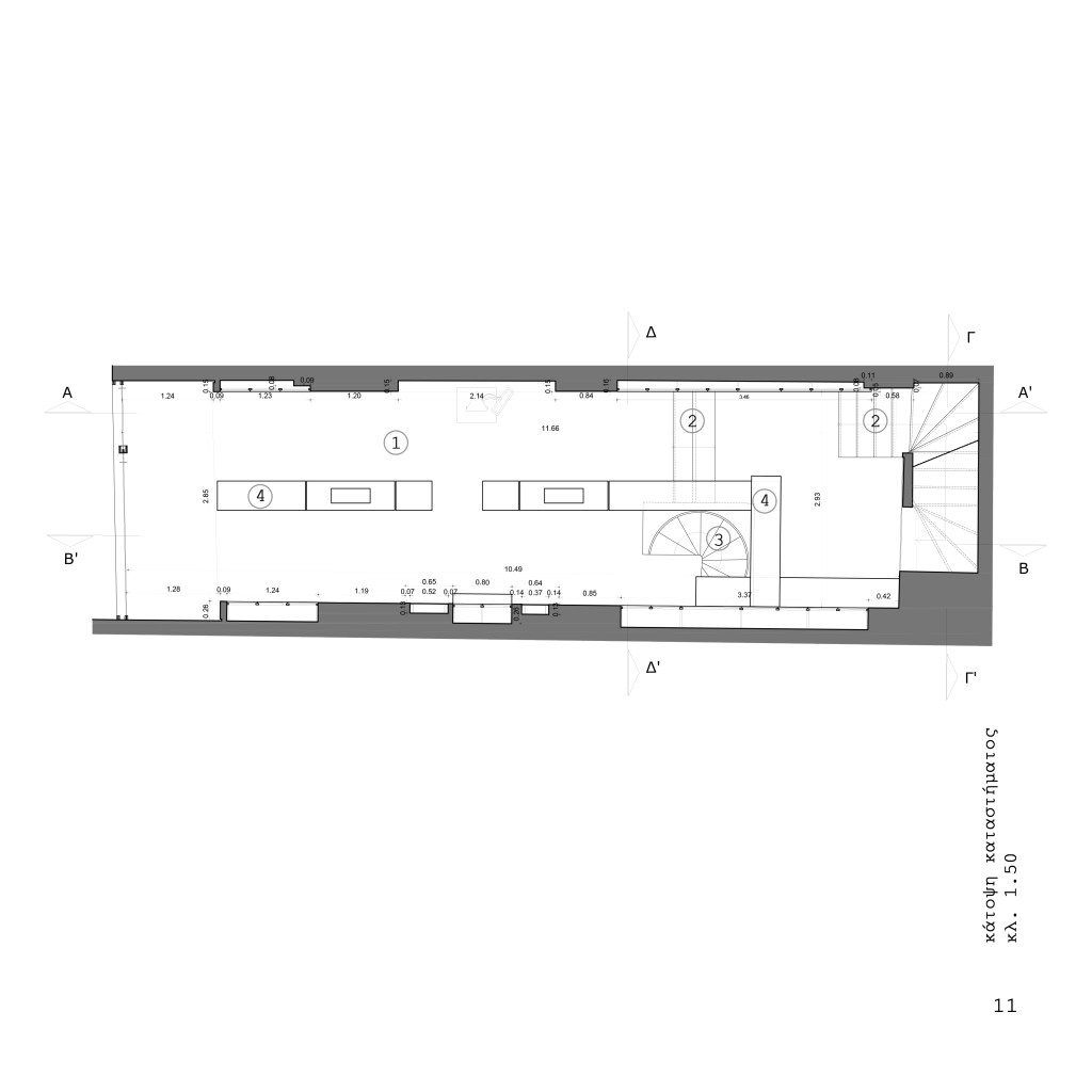
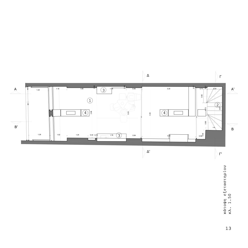
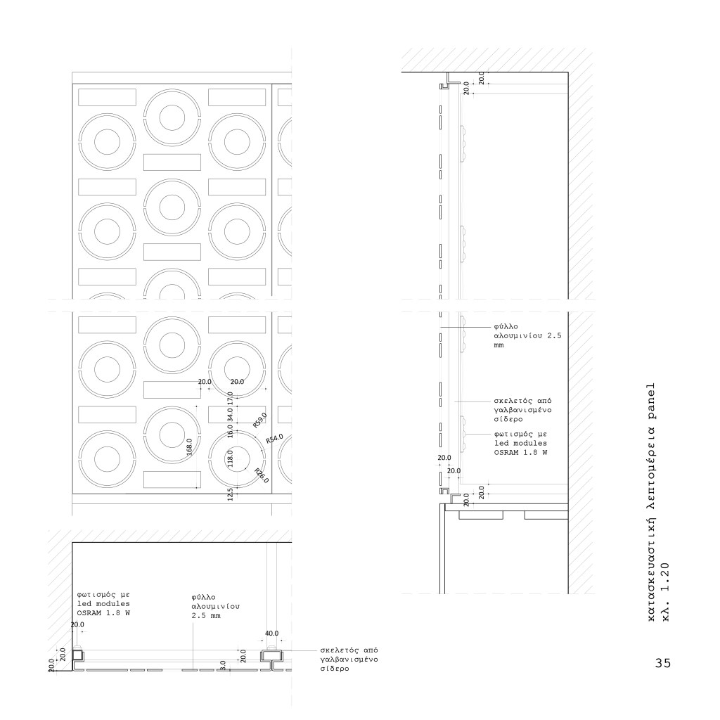
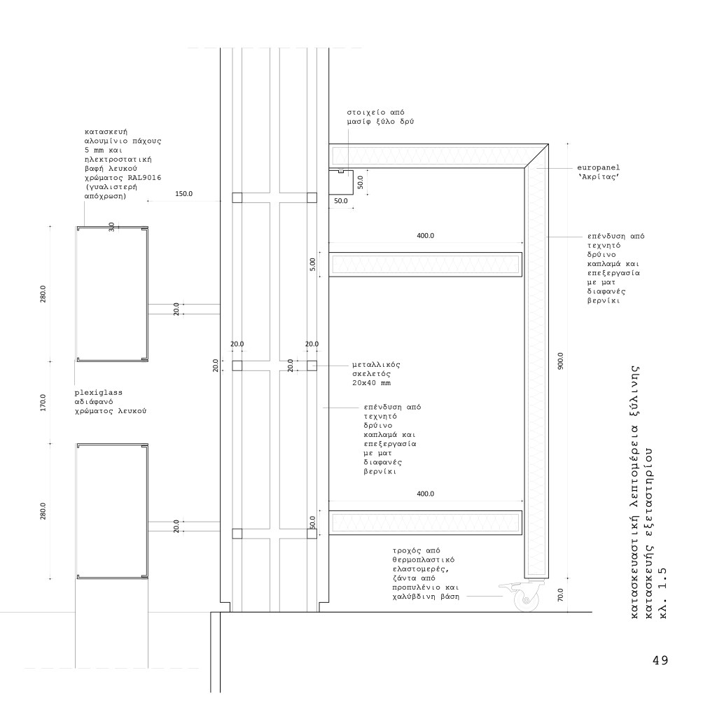
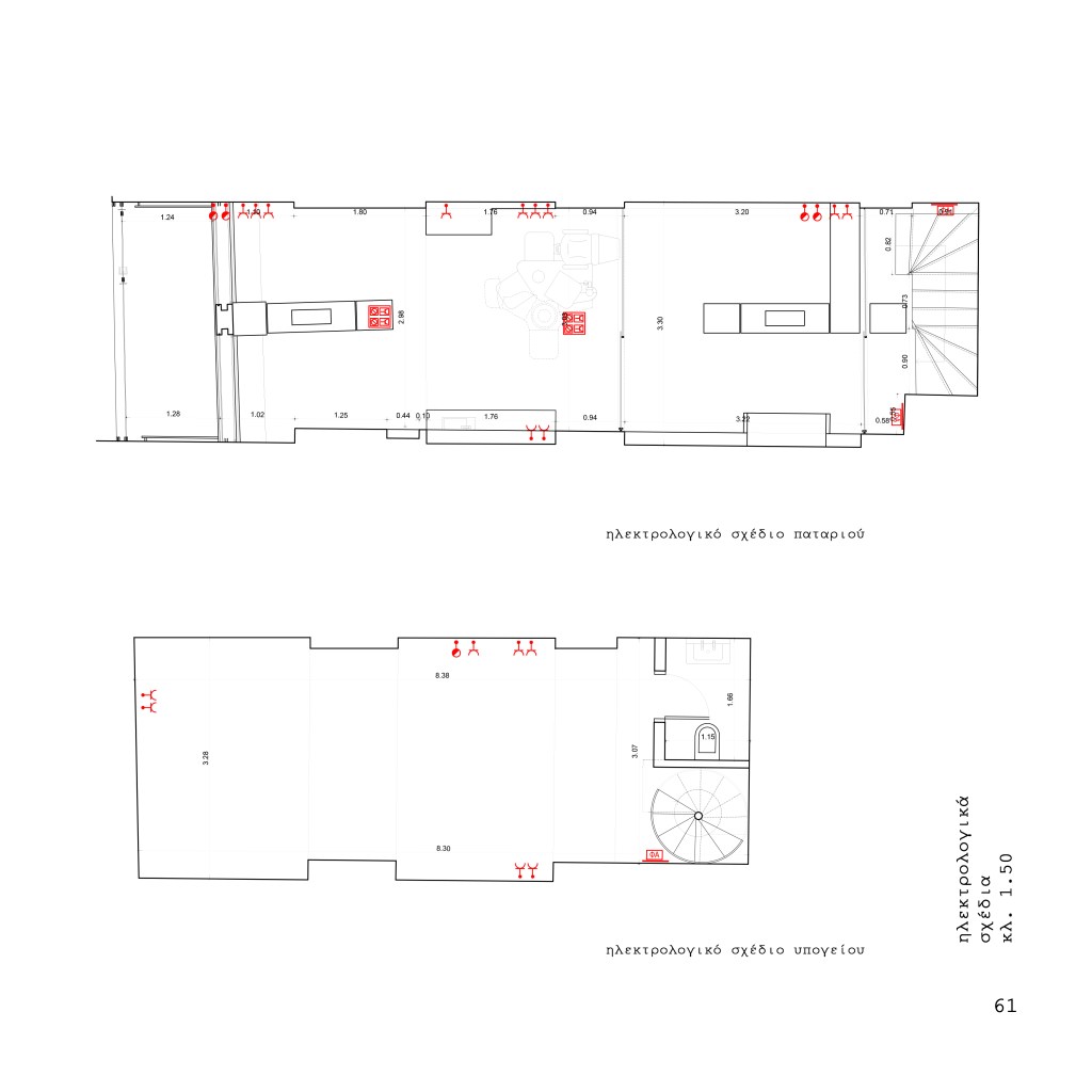
This booklet explores the interior design of an optician store in central Athens, focusing on custom-made furniture and structural detailing. Through analytical site documentation and close-up drawings, it captures the dialogue between craftsmanship, materiality, and spatial precision.































































