ERMOU, ATHENS ▫ GREECE ▫ 2018

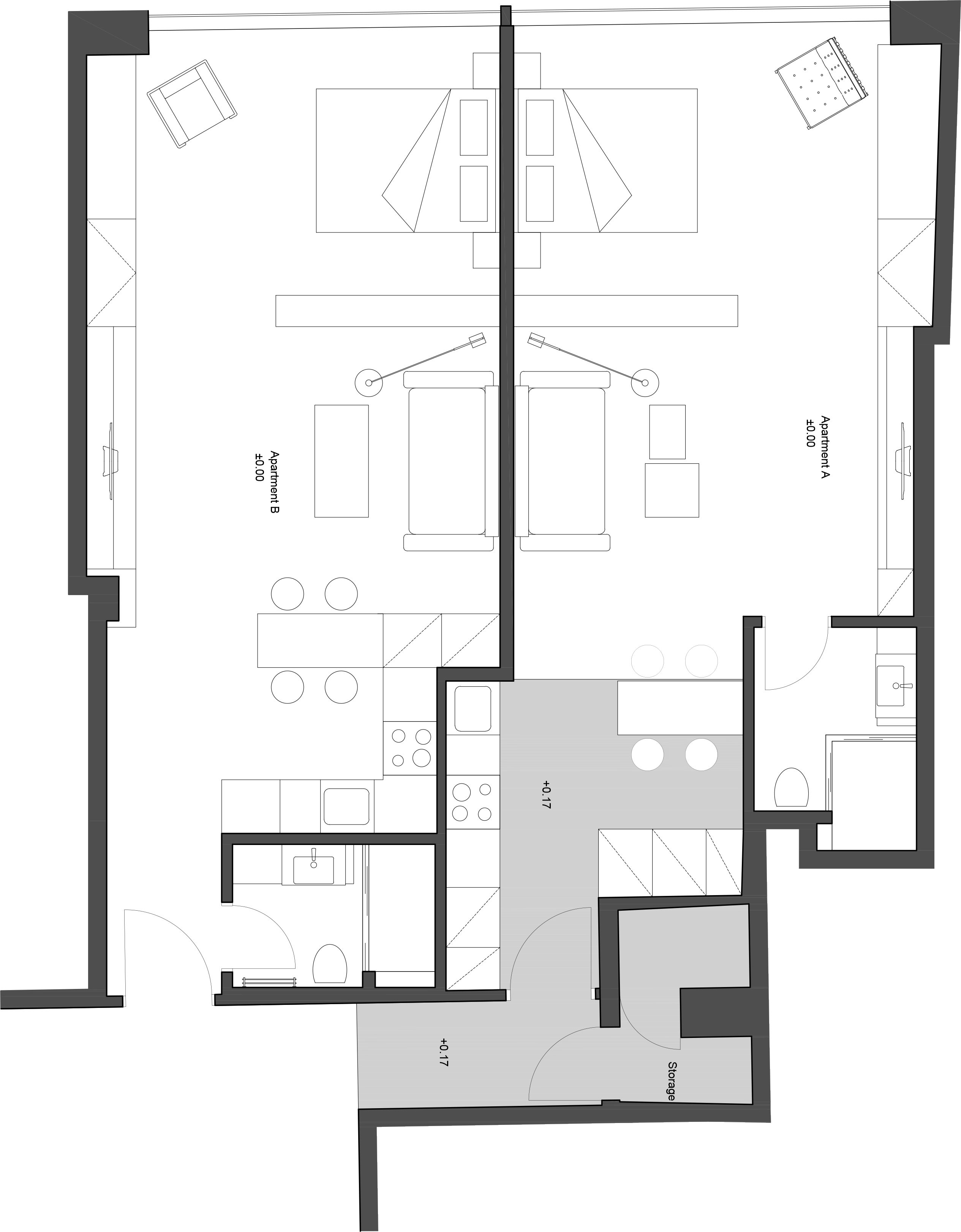
The project’s objective is the transformation of an office space to two separate apartments (White apartment and black apartment respectively). The two apartments are located in Ermou street, central Athens, and will be both used for short term and long term rentals. The apartments were designed in similar way. The aim was to combine most in-house facilities in a single room, keeping an open space mindset. To that end a uniform wooden multipurpose piece of furniture was constructed, running the full length of one of the apartment’s walls. At the same time, the creation of a low-height library with “see-through” elements defines the separation of lounge and sleeping spaces, without, however, preventing visual communication. Natural colored plywood surfaces are dominant. These surfaces are combined with metallic elements in black and white. Design of the wooden constructions offered a unique opportunity for architectural experimentation. Neutral textures and colors were chosen for both the kitchens and the bathrooms so as to create a proper foundation for bringing out these wooden constructions.











